Woning te koop in Oostende

€ 495.000
Steenbakkersstraat 40 /
8400 Oostende

Instapklare kangoeroe-woning

Recent gebouwd woonhuis bestaande uit twee individuele appartementen met ruime garage en zonnige tuin. Eventueel geschikt als KANGOEROE-woning.

Indeling:

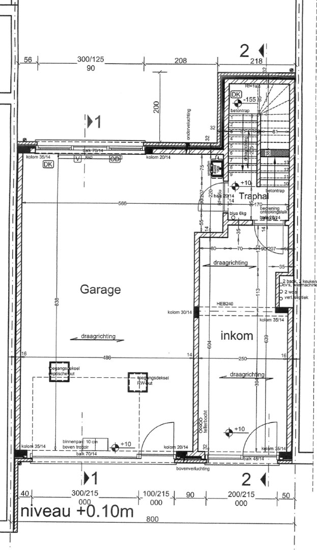
* gelijkvloers: inkomhall, tellers, zeer ruime garage (40m²) met elektrische poort, terras (6x4m), grote zonnige tuin (8x20m), afzonderlijk toilet.

* eerste verdiep: inkomhall, berging met wasplaats, afzonderlijk toilet, woonkamer met open ingerichte keuken, 1 slaapkamer, badkamer met inloopdouche en wastafel.

* tweede verdiep: inkomhall, berging met wasplaats, afzonderlijk toilet, woonkamer met open keuken, fitnessruimte of kamer, grote mezanine met slaapkamer (32m²), badkamer met inloopdouche en wastafel, zolder.

- Afzonderlijk tellers (W,E,G)
- Regenwater 10.000L
- Individuele centrale verwarming op aardgas
- Recent gebouw (2011)
- Elektriciteit CONFORM.
Woning te koop / Oostende

Details

Bouwjaar 2011
Algemene staat Instapklaar
Beschikbaar Bij akte
Totale opp. grond 270 m²
Breedte huis 8 m

Energie

EPC 86 kWh/m2/jaar
EPC ref. 3659663
Label epc waarde a
Woning te koop / Oostende

Indeling

Gelijkvloers

Woonkamer
Keuken
2x Badkamer
3x Slaapkamer
3x WC
Zolder
Terras
24 m²
Garage
40 m²
Tuin

Ruimtelijke ordening

Overstromingsgevoeligheid Geen overstromingsgevoelig gebied
Stedenbouwkundige bestemming Woongebied
Dagvaarding voor stedenbouwkundige overtreding Geen rechterlijke herstelmaatregel of bestuurlijke maatregel opgelegd
Bouwvergunning Bouw vergund
Verkavelingsvergunning Niet ingegeven
Voorkooprecht Neen
Beschermd erfgoed Neen
Geïnventariseerd erfgoed Geen beschermd erfgoed
Renovatieplicht Nee

Financiële info

Prijs € 495.000

Comfort

  • Aardgas
  • Internet
  • Riolering
  • Stadswater
  • Telefoon
Woning te koop / Oostende
Woning te koop / Oostende
Woning te koop / Oostende
Woning te koop / Oostende
Woning te koop / Oostende
Woning te koop / Oostende
Woning te koop / Oostende
Woning te koop / Oostende
Woning te koop / Oostende
Woning te koop / Oostende
Woning te koop / Oostende
Woning te koop / Oostende
Woning te koop / Oostende
Woning te koop / Oostende
Woning te koop / Oostende
Woning te koop / Oostende
Woning te koop / Oostende
Woning te koop / Oostende
Woning te koop / Oostende

Interesse? Contacteer ons

Gelieve een geldige voornaam in te geven.
Gelieve een geldige naam in te geven.
Gelieve een geldig e-mailadres in te geven.
Gelieve een geldige telefoon- en/of GSM-nummer in te geven.